Casa indipendente in vendita

Boara Pisani, Via Roma - Ca' Bianca
€ 145.000
250 Mq 250 Mq
2 bagni 2 bagni

Casa indipendente in vendita

Boara Pisani, Via Roma - Ca' Bianca

Descrizione annuncio

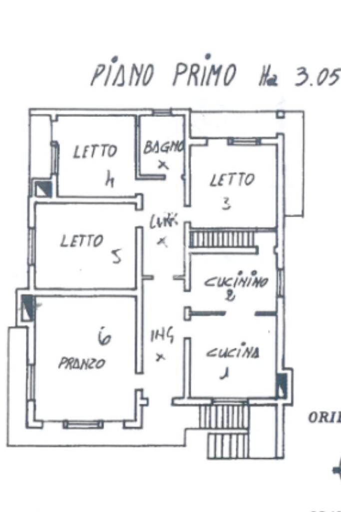
BOARA PISANI: in zona Cà Bianca casa singola con giardino piantumato di circa 2000 mq. La casa si sviluppa su due livelli con accesso dal piano terra al primo sia dalla scala esterna sia da quella interna. Al primo piano si sviluppa l'abitazione principale. L'ampio ingresso conduce alla zona giorno divisa in cucina con cucinotto e luminosa sala da pranzo. Il reparto notte, diviso dalla zona giorno mediante una porta in legno, dispone di tre camere da letto ed un bagno finestrato. Al piano terra troviamo la cantina, lo studio e la lavanderia. Collegato all'interno dell'abitazione, garage di circa 46 mq. L'abitazione necessita di ristrutturazione parziale.

L'indirizzo inserito è puramente indicativo.

Mostra tutto

Nelle vicinanze

Trasporto pubblico Trasporto pubblico
Boara Pisani
Boara Pisani
30 m
SITA
SITA
1,7 Km
Ricariche auto elettriche Ricariche auto elettriche
Rovigo Polesani Nel Mondo | EnelX
520 m
Hotel Petrarca | EnelX
1,7 Km
ROVIGO Porta Adige | ENELX
2,2 Km
EnelX EVA+ Rovigo Porta Adige
2,4 Km
Scuole Scuole
Scuole
390 m
Scuola Elementare
600 m
C.U.R. - Consorzio Universitario Rovigo
2,2 Km
Liceo Statale "Celio-Roccati"
2,9 Km
I.T.I.S. Viola
2,9 Km
Supermercati Supermercati
Eurospin
2,0 Km
Aliper
2,0 Km
Negozi Negozi
Il Fornaio
80 m
Panificio Da Lorenzo
400 m
Alimentari Da Tullio
1,7 Km
Bar Bar
Young People
20 m
Bar
150 m
Bar
460 m
Bar Regina di Cuori
570 m
Bar Sport
1,4 Km
Ristoranti Ristoranti
Agli Ingordi
30 m
Albergo Ristorante Adige
50 m
Pizzeria da Roberto
390 m
Pizzeria Ottavo Nano
1,4 Km
Pizzeria Ristorante La Bufalina
1,9 Km
Mostra tutto

Caratteristiche

Rif.:
60846707
Piano:
2 di 2 (Piano su più livelli)
Box:
1
Posti auto:
4
Terrazzi:
1
Camere da letto:
3
Mostra tutto
Prezzo Prezzo
€ 145.000
Rata mutuo Rata mutuo
€ 684 / mese
Proponi il tuo prezzoProponi il tuo prezzo

Classe Energetica

G
G
G
G
G
G
G
G
G
Anno di costruzione:
1967
Riscaldamento:
Autonomo
Tipo impianto:
A radiatori
Tipo alimentazione:
Metano

Ti interessa visionare l'immobile?

Fissa un appuntamento  Fissa un appuntamento

Richiedi informazioni

Clicca su Leggi per aprire l'informativa
* Questi campi sono obbligatori

Calcola il tuo mutuo

Semplice e senza impegno
Anticipo

( % )
Mutuo

( % )

pochi semplici passi

inserisci i tuoi dati
Questionario completato
Grazie per aver richiesto un appuntamento senza impegno con un nostro Consulente del Credito e Assicurativo.

Hai inserito correttamente tutti i dati necessari e a breve riceverai una e-mail con un link da convalidare per inviare i tuoi dati.
Affiliato
Immobilsole Srl
P.zza Matteotti, 16 35047 Solesino (PD)

Il nostro staff


  • Achille Binato
    Affiliato

  • Claudia Gioachin
    Responsabile

  • Desy Borghesan
    Coordinatrice
P.zza Matteotti, 16 35047 Solesino (PD)
Zona: Solesino-Granze-Sant'Elena-Villa Estense-Vighizzolo-Pozzonovo-Stanghella
Mostra su mappa
Orari: dal lunedì al venerdì: 9.00 - 12.30-14.30 - 19.00; sabato 09.00 - 13.00
Affiliato
Immobilsole Srl
P.zza Matteotti, 16 35047 Solesino (PD)

2026 Tecnocasa Franchising S.p.A. - P. IVA 08365160152 - Via Monte Bianco 60/A 20089 Rozzano (MI). Ogni agenzia ha un proprio titolare ed è autonoma. Privacy policy | Policy utilizzo | Cookie policy