Villa singola in vendita

Solesino, Via VI Novembre
€ 235.000
Prezzo aggiornato
7 locali 7 locali
349 Mq 349 Mq
2 bagni 2 bagni

Villa singola in vendita

Solesino, Via VI Novembre

Descrizione annuncio

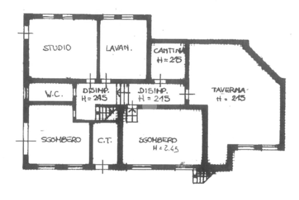
SOLESINO: Villa singola tipica degli anni Ottanta, la soluzione ideale per chi cerca ampi volumi e una configurazione abitativa estremamente funzionale, lungo la strada Provinciale che collega Solesino a Sant'Elena. La proprietà si distingue per i suoi spazi generosi, ideale sia per una famiglia numerosa, sia per chi necessita di aree dedicate al lavoro. Al piano superiore si sviluppa l'intera zona residenziale. Entrando, si viene accolti da un salone grande e luminoso, valorizzato dalla presenza di un caminetto. Adiacente, troviamo la cucina, anch'essa di grandi dimensioni, completata dalla comoda e funzionale dispensa, elementi essenziali per chi vive la cucina quotidianamente. Un dettaglio notevole è l'accesso diretto al porticato esterno, raggiungibile sia dal salone che dalla cucina, estendendo di fatto la zona giorno all'aperto. La zona notte è composta da tre camere matrimoniali ben sfruttabili e da doppi servizi: un bagno padronale molto ampio con vasca e un secondo bagno di servizio, netrambi finestrati. Dalla zona notte una scala porta alla mansarda, uno spazio versatile da adibire secondo le proprie esigenze. Il vero valore aggiunto di questa villa è dato dal piano inferiore, un ambiente completamente attrezzato e versatile. Qui è stata ricavata una spaziosa taverna con camino, affiancata da una lavanderia e da un utile studio. Completano il livello due grandi cantine, perfette per ogni esigenza di stoccaggio. Questa distribuzione rende la villa particolarmente adatta a due scopi distinti: può ospitare comodamente una famiglia numerosa che necessita di aree ricreative extra, oppure può servire un acquirente che desidera utilizzare il piano inferiore per la propria attività lavorativa, garantendo la separazione tra vita privata e professionale. All'esterno, la casa è circondata dal giardino piantumato mentre sul retro della proprietà sono disponibili quattro garage separati. L'immobile necessita di alcuni interventi di ristrutturazione

Mostra tutto

Nelle vicinanze

Trasporto pubblico Trasporto pubblico
Solesino Centro
Solesino Centro
60 m
Via 4 Novembre
Via 4 Novembre
480 m
Scuole Scuole
Scuole
110 m
Ic Solesino
270 m
Negozi Negozi
Panificio Polato
2,7 Km
Primizie & Delizie
2,7 Km
Bar Bar
Bar
2,2 Km
Bar Centrale
2,5 Km
Ristoranti Ristoranti
Ristorante la Cappa d'oro
1,1 Km
Lago Smeraldo
1,4 Km
Osteria Antica Quercia
1,8 Km
Pizzeria le Botti
2,2 Km
Trattoria Pizzeria Ai Gati Mori
2,7 Km
Mostra tutto

Caratteristiche

Rif.:
61149722
Piano:
2 di 2 (Piano su più livelli)
Box:
5
Posti auto:
3
Terrazzi:
2
Camere da letto:
3
Mostra tutto
Prezzo Prezzo
€ 235.000
Rata mutuo Rata mutuo
€ 1.116 / mese
Spese annue Spese annue
€ 0
Proponi il tuo prezzoProponi il tuo prezzo

Classe Energetica

G
G
G
G
G
G
G
G
G
Riscaldamento:
Autonomo
Tipo impianto:
A radiatori
Tipo alimentazione:
Altro

Prezzo ridotto di €1 (6%%)

Ti interessa visionare l'immobile?

Fissa un appuntamento  Fissa un appuntamento

Richiedi informazioni

Clicca su Leggi per aprire l'informativa
* Questi campi sono obbligatori

Calcola il tuo mutuo

Semplice e senza impegno
Anticipo

( % )
Mutuo

( % )

pochi semplici passi

inserisci i tuoi dati
Questionario completato
Grazie per aver richiesto un appuntamento senza impegno con un nostro Consulente del Credito e Assicurativo.

Hai inserito correttamente tutti i dati necessari e a breve riceverai una e-mail con un link da convalidare per inviare i tuoi dati.
Affiliato
Immobilsole Srl
P.zza Matteotti, 16 35047 Solesino (PD)

Il nostro staff


  • Achille Binato
    Affiliato

  • Claudia Gioachin
    Responsabile
P.zza Matteotti, 16 35047 Solesino (PD)
Zona: Solesino-Granze-Sant'Elena-Pozzonovo-Stanghella-Monselice
Mostra su mappa
Orari: dal lunedì al venerdì: 9.00 - 12.30-14.30 - 19.00; sabato 09.00 - 13.00
Affiliato
Immobilsole Srl
P.zza Matteotti, 16 35047 Solesino (PD)

2026 Tecnocasa Franchising S.p.A. - P. IVA 08365160152 - Via Monte Bianco 60/A 20089 Rozzano (MI). Ogni agenzia ha un proprio titolare ed è autonoma. Privacy policy | Policy utilizzo | Cookie policy