Casa semindipendente in vendita

Vescovana, Via XXVIII Aprile
€ 25.000
60 Mq 60 Mq
1 bagno 1 bagno

Casa semindipendente in vendita

Vescovana, Via XXVIII Aprile

Descrizione annuncio

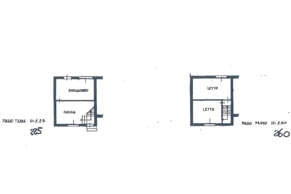
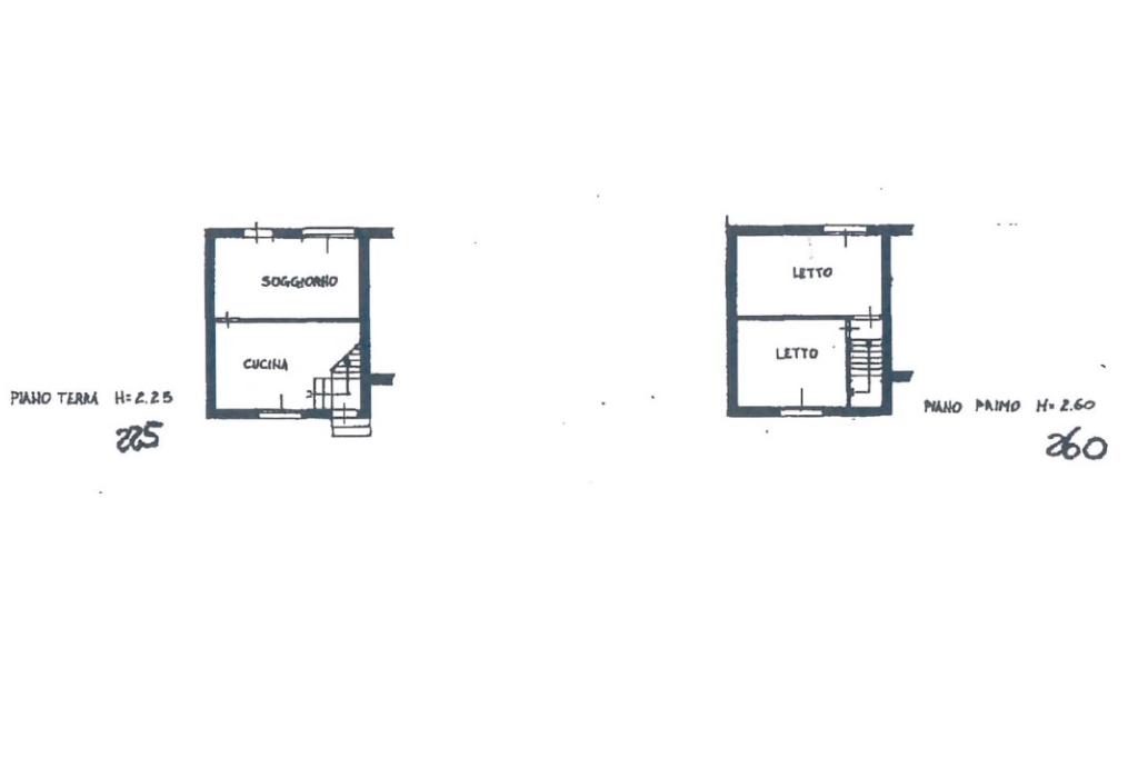
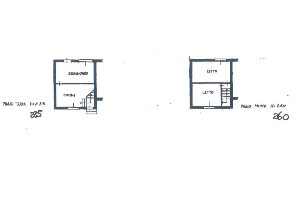
VESCOVANA: In una tranquilla zona di aperta campagna, proponiamo una casa semindipendente di circa 60 mq, disposta su due livelli. L’ingresso si apre su un luminoso salottino che poi conduce alla cucina, comoda e bene organizzata. Dalla cucina si sale al primo piano dove si sviluppa la zona notte che dispone di due spaziose camere da letto matrimoniali. Sempre dalla cucina è possibile uscire sul retro dell’abitazione dove troviamo in corpo staccato il bagno e il locale cantina. A completare la proprietà, 200 mq circa di giardino che si sviluppa sul retro dell’abitazione.

Mostra tutto

Nelle vicinanze

Trasporto pubblico Trasporto pubblico
Vescovana Ponte
Vescovana Ponte
1,0 Km
Granze Ponte
Granze Ponte
1,2 Km
Scuole Scuole
Scuole
1,2 Km
Supermercati Supermercati
Supermercato
2,6 Km
Negozi Negozi
Panificio Rosina
760 m
Panificio Trevisan
2,6 Km
Bar Bar
Bar
730 m
Bar Bianchini Lucilla
1,0 Km
Bar Sissai
2,4 Km
Ristoranti Ristoranti
Trattoria da Turba
2,0 Km
Trattoria Vecia
2,4 Km
Mostra tutto

Caratteristiche

Rif.:
61139166
Piano:
2 di 2 (Piano su più livelli)
Camere da letto:
2
Condizionamento:
Assente
Ascensore:
No
Riscaldamento:
Autonomo
Mostra tutto
Prezzo Prezzo
€ 25.000
Rata mutuo Rata mutuo
€ 118 / mese
Proponi il tuo prezzoProponi il tuo prezzo

Classe Energetica

G
G
G
G
G
G
G
G
G
Riscaldamento:
Autonomo
Tipo impianto:
A radiatori
Tipo alimentazione:
Altro

Ti interessa visionare l'immobile?

Fissa un appuntamento  Fissa un appuntamento

Richiedi informazioni

Clicca su Leggi per aprire l'informativa
* Questi campi sono obbligatori

Calcola il tuo mutuo

Semplice e senza impegno
Anticipo

( % )
Mutuo

( % )

pochi semplici passi

inserisci i tuoi dati
Questionario completato
Grazie per aver richiesto un appuntamento senza impegno con un nostro Consulente del Credito e Assicurativo.

Hai inserito correttamente tutti i dati necessari e a breve riceverai una e-mail con un link da convalidare per inviare i tuoi dati.
Affiliato
Immobilsole Srl
P.zza Matteotti, 16 35047 Solesino (PD)

Il nostro staff


  • Achille Binato
    Affiliato

  • Claudia Gioachin
    Responsabile

  • Desy Borghesan
    Coordinatrice
P.zza Matteotti, 16 35047 Solesino (PD)
Zona: Solesino-Granze-Sant'Elena-Villa Estense-Vighizzolo-Pozzonovo-Stanghella
Mostra su mappa
Orari: dal lunedì al venerdì: 9.00 - 12.30-14.30 - 19.00; sabato 09.00 - 13.00
Affiliato
Immobilsole Srl
P.zza Matteotti, 16 35047 Solesino (PD)

2025 Tecnocasa Franchising S.p.A. - P. IVA 08365160152 - Via Monte Bianco 60/A 20089 Rozzano (MI). Ogni agenzia ha un proprio titolare ed è autonoma. Privacy policy | Policy utilizzo | Cookie policy